︎
Info
Jonathan Levine
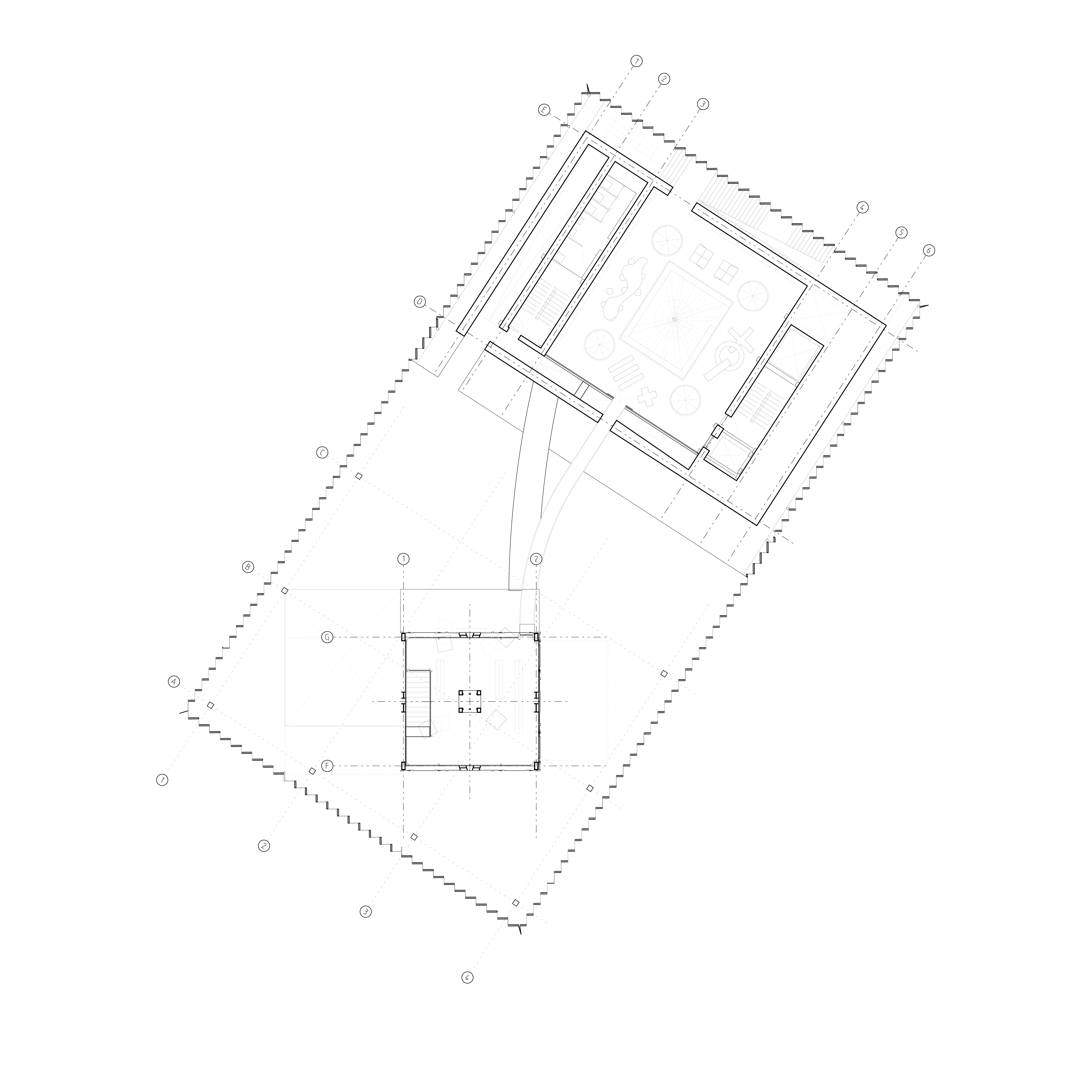
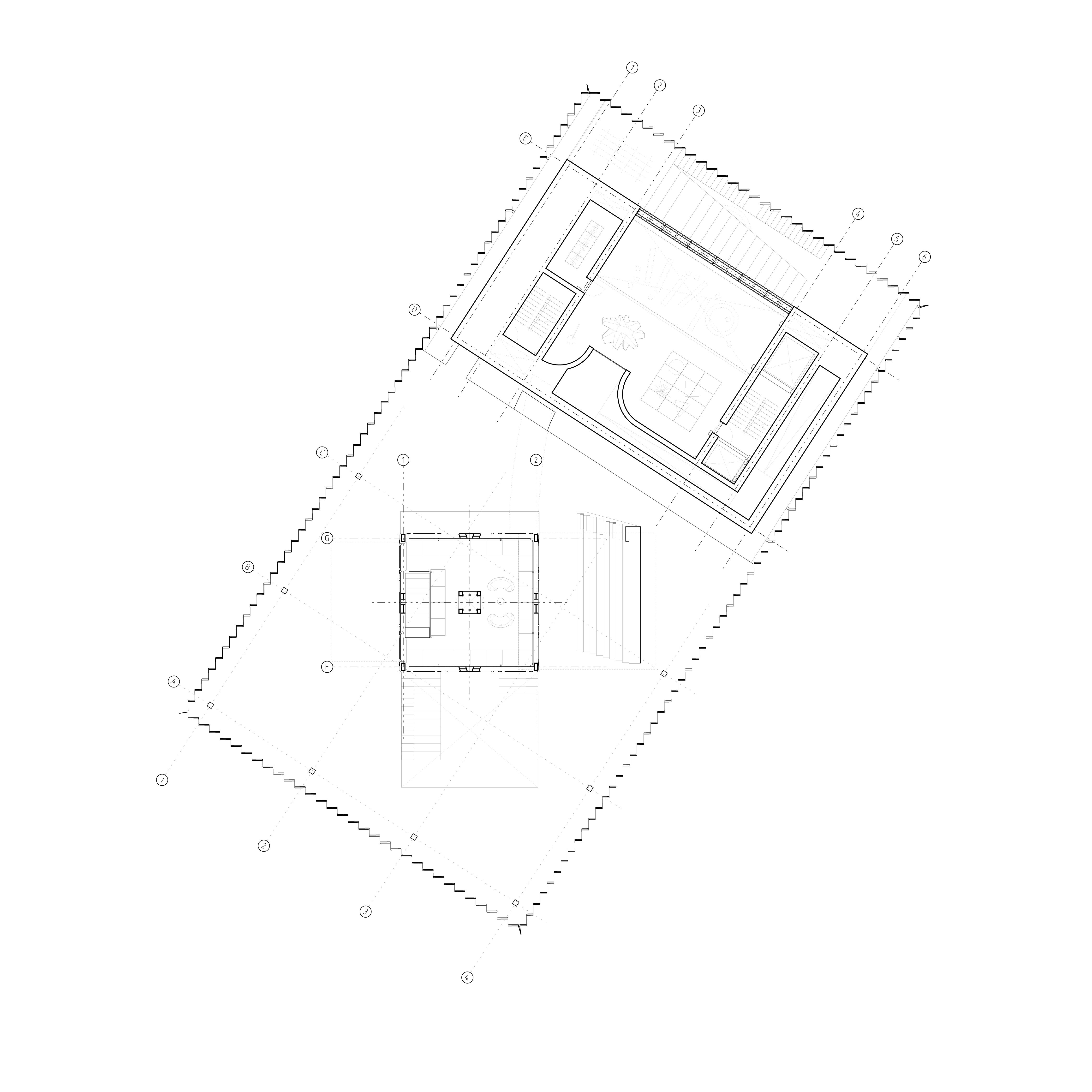
Project completed at Harvard GSD, in Core 3 with Eric Höweler.
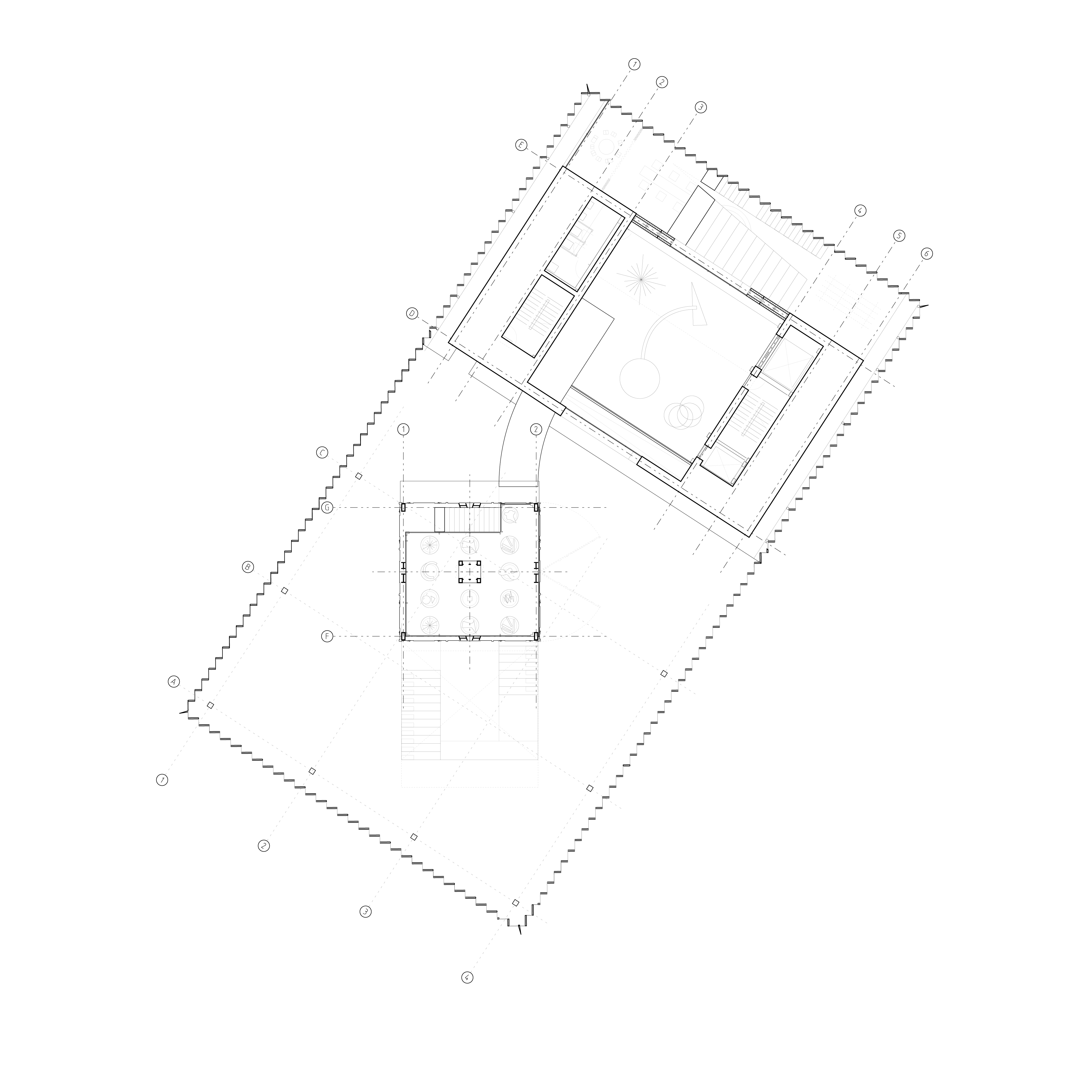
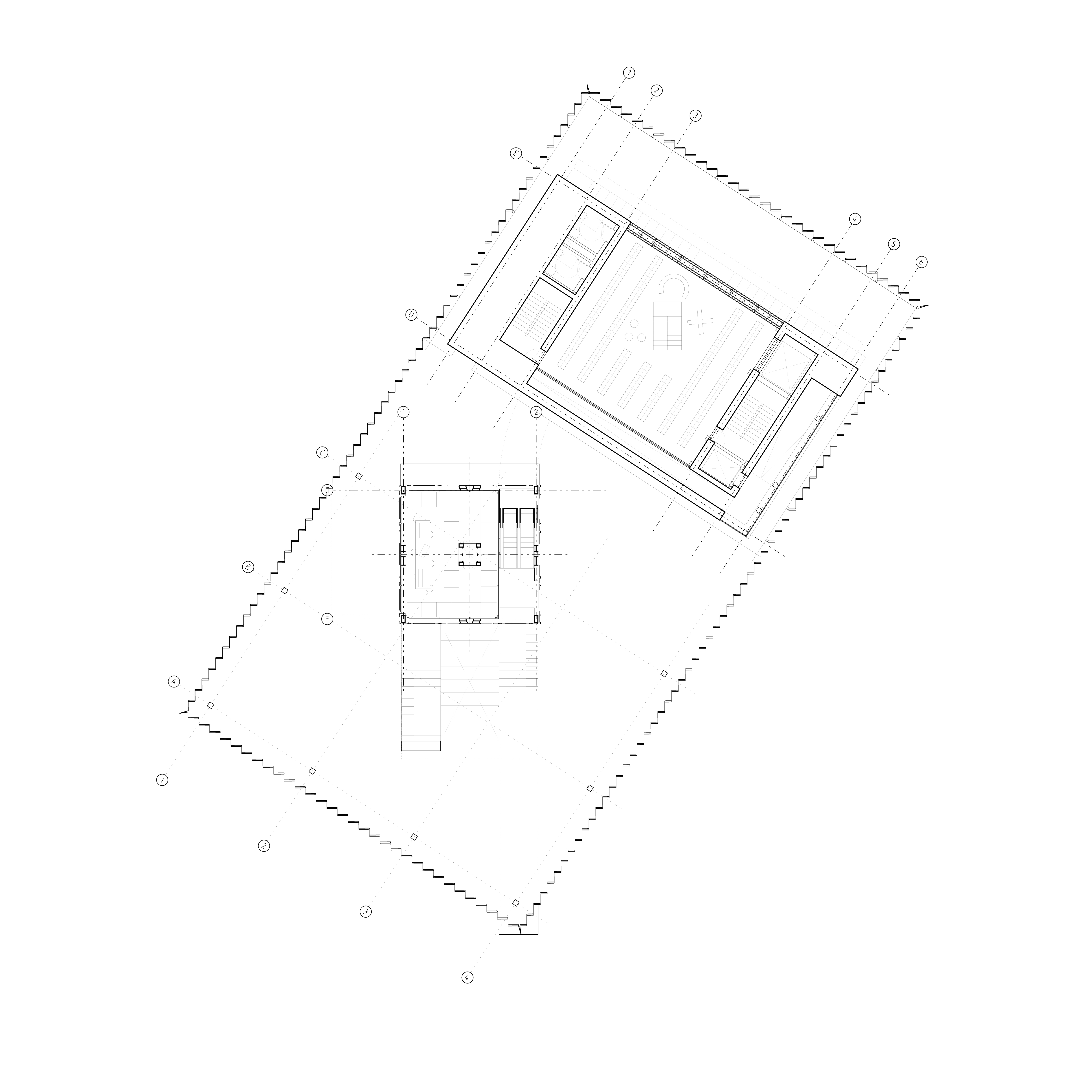
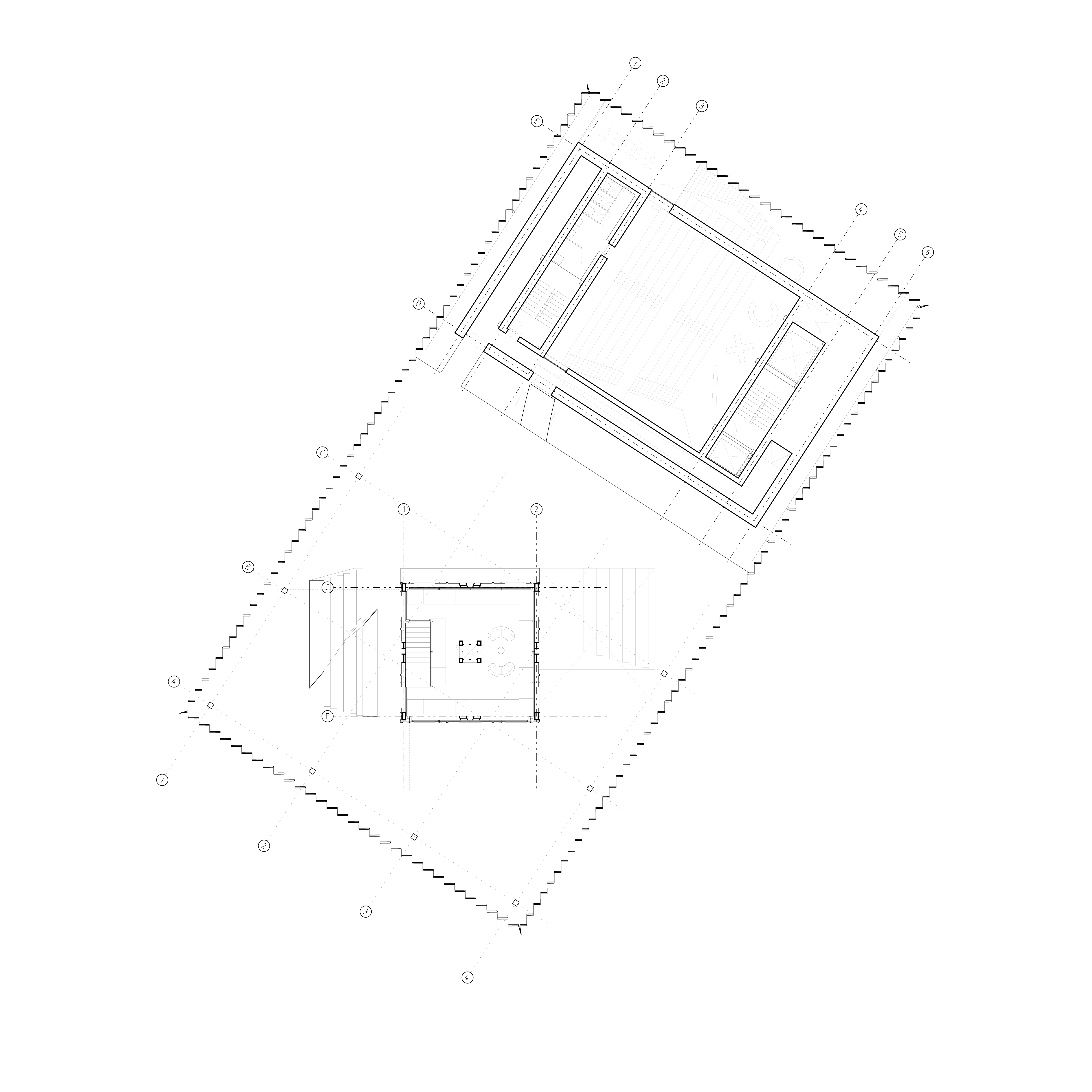
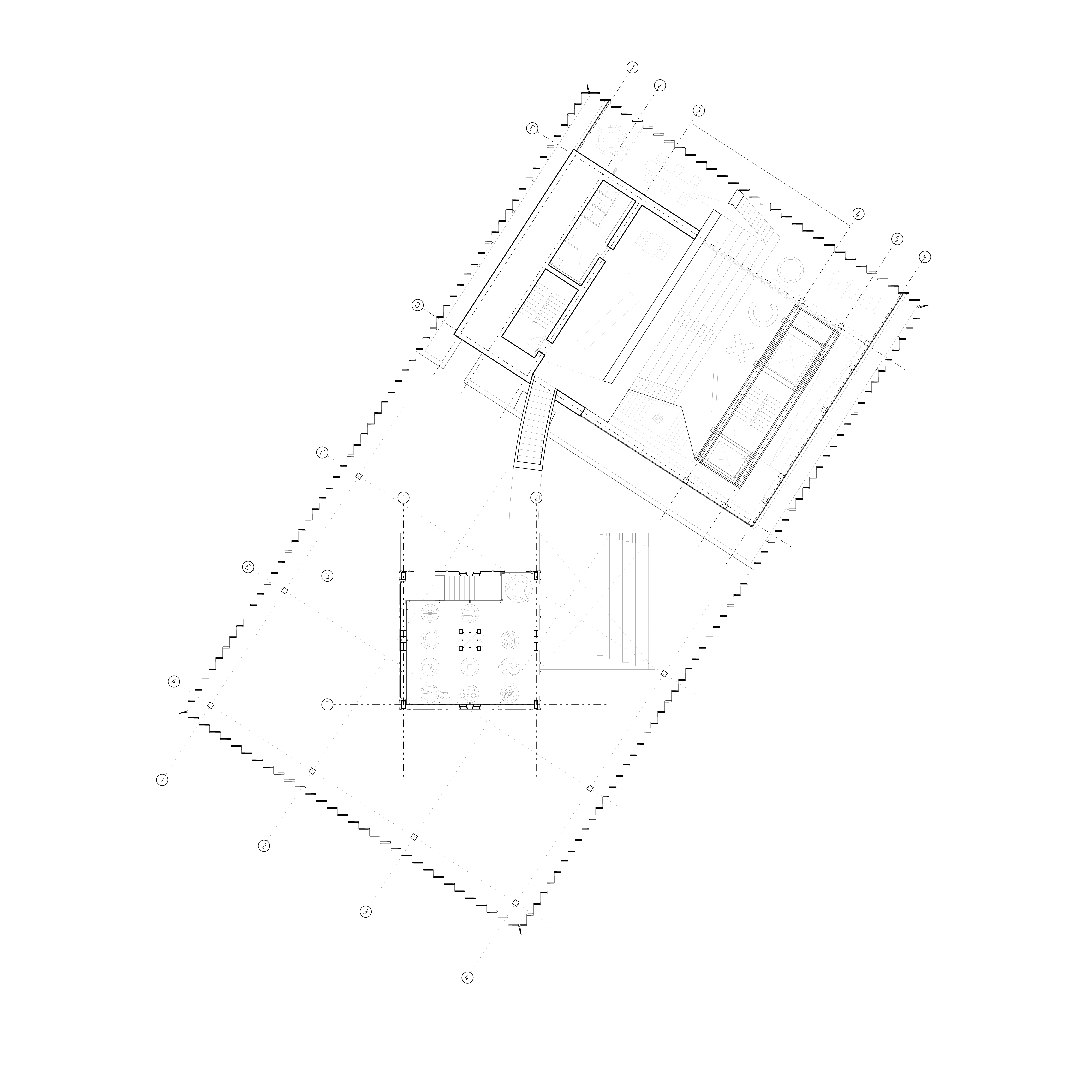
A design for a headquarters & archive for New York’s Municipal Arts Society (MAS) across from Washington Square Park
has worked with
Luetjens Padmanabhan
on projects in
Zurich
and
Basel
, and on a few
books
; with
OMA
on
Prada
and
Miu-Miu
shows, and a project in
Eindhoven
; with
Landing-Studio
on a s
alt headquarters
building
, on an
installation
, and on an under-highway
park
; with
NOIA
magazine and
Ground-Up
on an article about
sand
; at Harvard GSD on an
office to be observed
, on the reuse of a
nearly-triangular garage
, on a
river research laboratory
atop unstable grounds, on
social housing
next to an overpass, and on a means to
mourn two buildings
; with Harvard Arts First Festival on
a steam tunnel
; with the Harvard GSD Urban Planning Department on
sand stories
; and at
Cornell AAP
. Here is his
instagram
and
CV
. Here is
home
.